
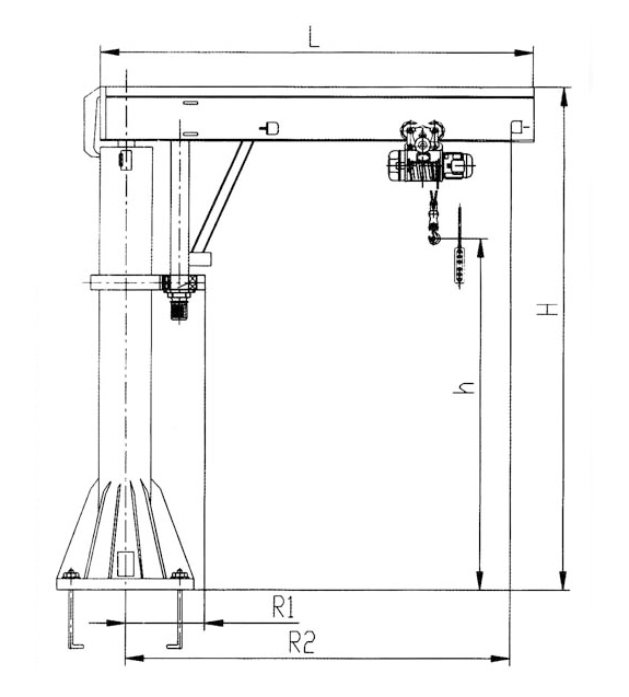
BZ型懸臂起重機引進國外先進技術,它結構合理、簡單,可廣泛用于廠礦、車間、倉庫、碼頭等處。
| 型號 | 額定起重量t | 升降速度常速/慢速m/min | L(mm) | R2(mm) | R1(mm) | H(mm) | h(mm) |
| BZ0.25-5 | 0.25 | 8/0.8 | 5300 | 5000 | 800 | 400 | 3000 |
| BZ0.5-5 | 0.5 | 5320 | 1000 | 4050 | |||
| BZ1-5 | 1 | 4100 | |||||
| BZ2-3 | 2 | 3900 | 3300 | 4500 | |||
| BZ3-5 | 3 | 5320 | 5000 | 1200 | 4200 | ||
| BZ5-5 | 5 | 8 | 5520 | 5550 | 4000 |
技術參數表
| 型號 | BZ0.5 | BZ1 | BZ2 | BZ3 | BZ5 | ||
| 額定起重量 | t | 0.5 | 1 | ||||
| 起升高度h ≤ | m | 3 | |||||
| 水平行程L2 ≤ | m | 4 | 4 | ||||
| 回轉半徑R ≤ | m | 5 | |||||
| 傾覆力矩M ≤ | t-m | 3 | 5.2 | ||||
| 回轉角度 | 360 | ||||||
| 提高速度 | 常速 | m/min | 8 | ||||
| 慢速 | m/min | 0.8 | |||||
| 水平運行速度 | m/min | 20 | |||||
| 回轉角速度 | r/min | 1 | 0.75 | 0.7 | 0.9 | 0.6 | |
| 自重 kg | 800 | 1150 | 1350 | 3500 | 4300 | ||
BZ型懸臂起重機
BZ型懸臂起重機 2019-5-21 本文被閱讀 6772 次
| 上一條:BZ型懸臂起重機 | 下一條:地平車 |




手機:和經理18854868555 杜經理13561784486

